Vừa qua, tại khách sạn Crown Plaza, không khí đã trở nên rất nóng bởi sự có mặt của hàng trăm khách hàng đến tham dự và giao dịch trong lễ mở bán căn hộ khách sạn Florence Mỹ Đình. Lễ mở bán thu hút hơn 150 khách hàng tham dự với 80% sản phẩm được đặt mua thành công, đáng chú ý có khách hàng đầu tư còn đặt mua 2 đến 3 sản phẩm để đầu tư cho thuê trong tương lai.
Đến sự kiện, có thể thấy đối tượng khách hàng hầu hết là những cặp vợ chồng trẻ, đa phần đến để tìm hiểu loại căn hộ 2 phòng ngủ của dự án. Với thiết kế tối ưu không gian sử dụng, hợp lý, căn hộ đều có 2 ban công phòng khách và logia phơi đồ, loại căn hộ 2 phòng ngủ diện tích 75m2,77m2 đều ấn tượng với khách hàng. Ngoài ra cũng có căn hộ 2 phòng ngủ diện tích 82m2 mặt đường Trần Hữu Dực thu hút những khách hàng muốn không gian sinh hoạt rộng rãi. Không chỉ phù hợp với khách hàng trẻ có nhu cầu về nơi ở, nơi làm việc lý tưởng chung cư Florence còn được các nhà đầu tư lựa chọn, bởi đây là hạng mục mang đến lợi tức ổn định. Khảo sát cho thấy, hiện giá cho thuê của mỗi căn hộ khu vực Mỹ Đình (diện tích 60– 70m2) bình quân từ 14-15 triệu đồng/ tháng. Nếu sở hữu vị trí đắc địa, giá cho thuê có thể cao hơn.

Thiết kế căn hộ 75m2 2 Phòng ngủ dự án Florence Mỹ Đình

Thiết kế căn hộ 77m2 2 Phòng ngủ dự án Florence Mỹ Đình
.jpg)
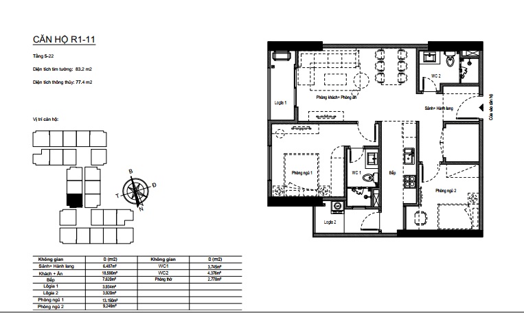
Thiết kế căn hộ 82m2 2 Phòng ngủ dự án Florence Mỹ Đình
Dự án Florence hiện có mức giá bán dao động từ 28 triệu đến 33 triệu/m2 bàn giao full nội thất cao cấp bao gồm: thiết bị vệ sinh thương hiệu Grohe nhập khẩu Đức, thiết bị bếp Hafele ( tủ bếp trên, tủ bếp dưới, chậu rửa, hút mùi ), điều hòa Gree/Daikin multil âm trần phòng khách, treo tường phòng ngủ, tù giày và tủ quần áo. Trong tháng 11, chính sách bán hàng nhân dịp sự kiện cất nóc dự án, quý khách hàng đặt cọc thành công căn hội có cơ hội nhận phần quà trị giá 30 triệu và tặng một năm quản lý phí dịch vụ. Ngoài ra đối với các căn hộ 2 phòng ngủ diện tích 82m2 trục 6,7,8, khách hàng sẽ được tặng thêm một gói nội thất trị giá 30 triệu đồng.
Mọi thông tin chi tiết về mặt bằng, bảng giá và chính sách bán hàng của dự án Florence, quý khách hàng liên hệ Hotline: 0989.446.826
Website: https://chungcuflorence.com/

Bùi Ngọc Điền - GĐKD
Điện thoại: 033.334.6688
Profile: Bùi Ngọc Điền
CEO Mê Linh | Eurowindow Thanh Hóa | Mik Bắc Giang | Rivea Hà Nội | Việt Yên Riverside | Sun Mê Linh | An Bình Homeland | Sun Bắc Ninh | Vinhomes Hòa Long Bắc Ninh | Sunshine Legend City | Sun Feliza Suite Cầu Giấy | Sun Urban City Hà Nam | Alluvia City Hưng Yên | Noble Crystal Tây Hồ | Royal Mansion Bắc Giang | Review Bất Động Sản | Khu đô thị Hồng Hạc Phú Mỹ Hưng Bắc Ninh | Việt Đức Legend City | The Crown Bắc Giang | Vinhomes Vĩnh Phúc | Cẩm Khê Central Park | Bavella Green Park Bắc Giang | Chung cư The Matrix One | Việt Đức Legend City | Khu đô thị Kiến Giang Thái Bình | Danko Riverside Bắc Giang | Yên Thế Golden Hill Bắc Giang |